ARTCHITECT'S
TUDIO
Apartment Renovation In Exarcheia, Athens
Projects / Residential / Apartment Renovation In Exarcheia, Athens
Residential

Apartment Renovation In Exarcheia, Athens

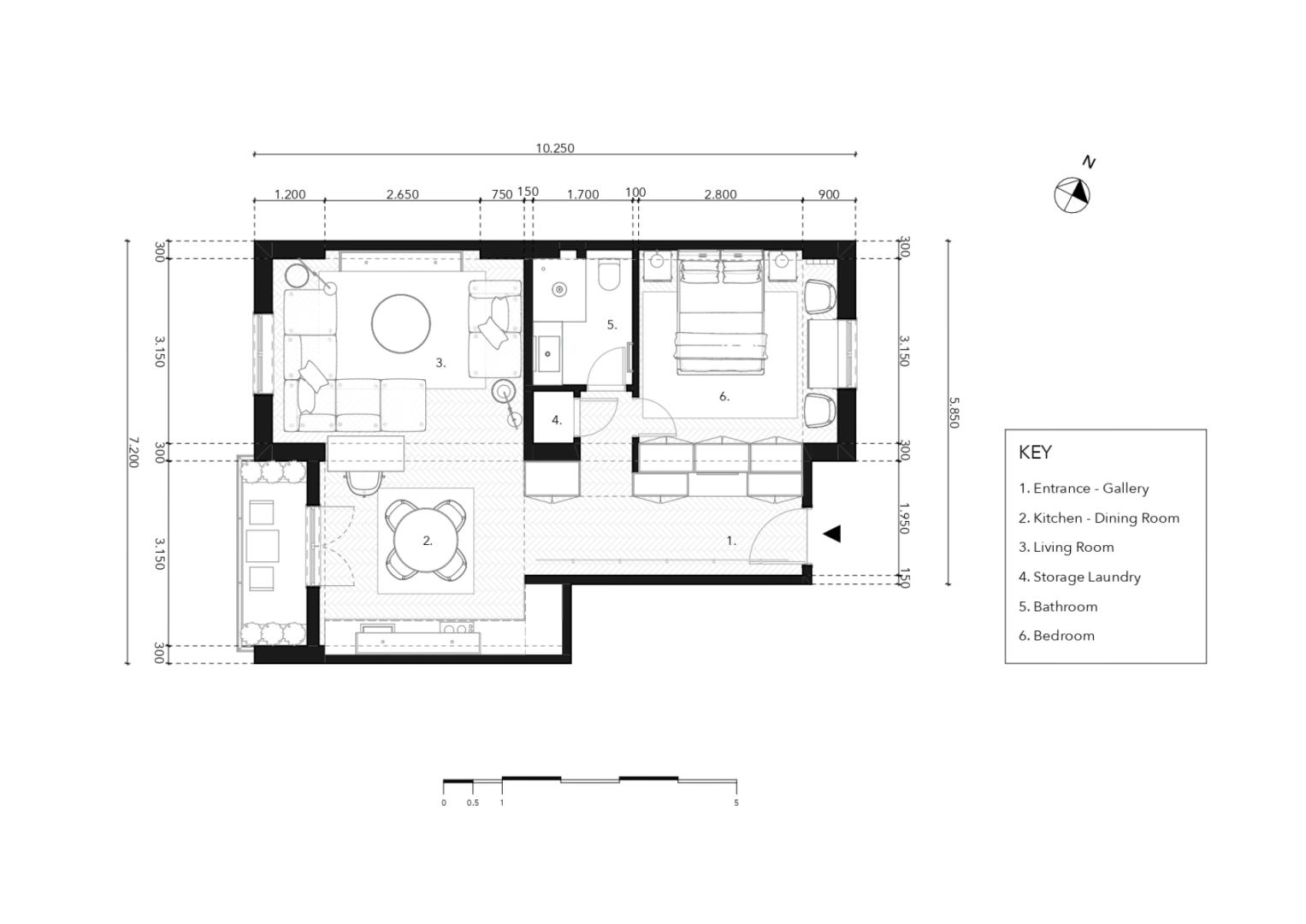
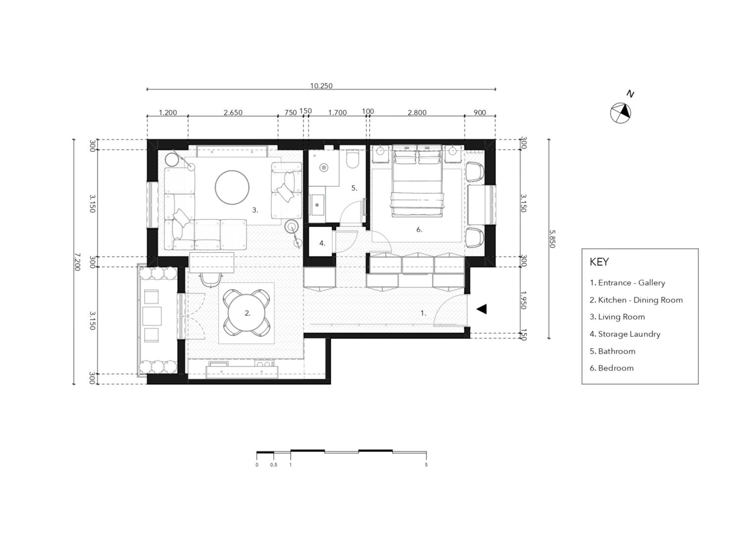
This project involves the renovation of a small residential apartment located in Exarcheia, Athens. Theoriginal layout reflected a common typology of Athenian apartment buildings from the1960s and 1970s, characterised by a large entrance hall and a separate kitchen facing the rear of the building. This arrangement resulted in a fragmented plan, with limited spatial continuity and inefficient use of the available floor area.The proposed layout rethinks this organisation in response to contemporary patterns of living. The bedroom was relocated to the quieter and darker rear part of the apartment, formerly occupied by the kitchen, allowing the main living areas to unfold towards the front. This intervention enabled the creation of an open-plan kitchen, dining, and living space, conceived as the social and functional core of home. In order to ensure that the apartment could sustain its sense of comfort and luxury in everyday use, generous storage was carefully integrated throughout the layout. A dedicated laundry and storage room was introduced within the previously underused entrance hall, transforming it into a functional buffer space that supports daily routines. Material choices emphasise restraint and tactility, with attention to texture, light, and built-in elements. The renovation transforms the existing apartment into a cohesive living environment that balances architectural clarity with long-term usability.

Technical Drawings