ART
CHITECT'
S
TUDIO
Projects
Services
About
Contact
EN
|
ΕΛ
Light
Dark
System
Projects
/
Residential
/
Residence in Chalandri, Athens
Residential
Residence in Chalandri, Athens
Residence in Chalandri, Athens
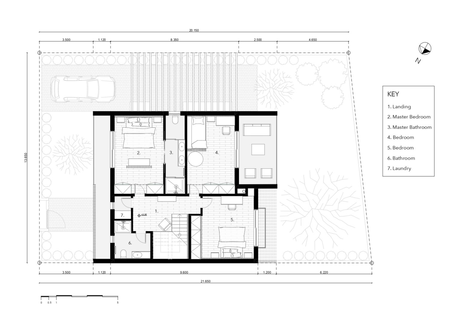
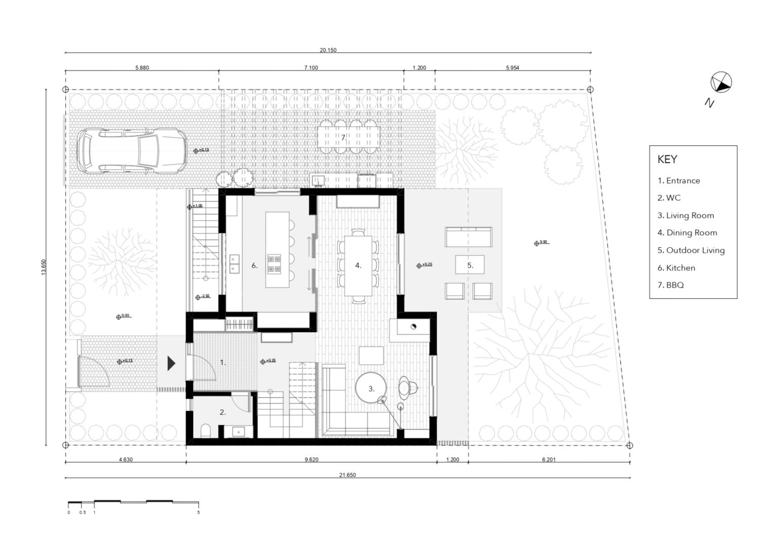
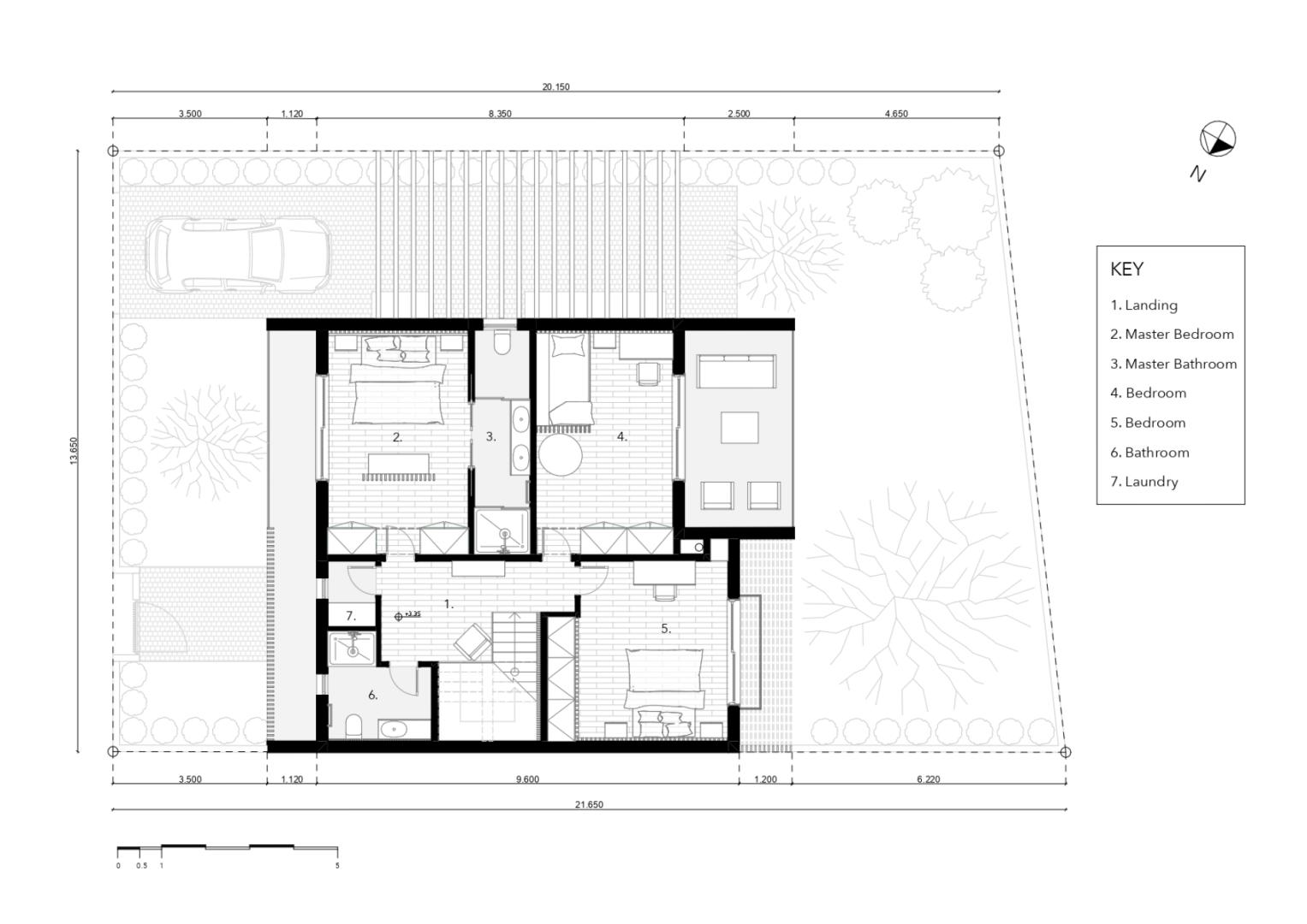
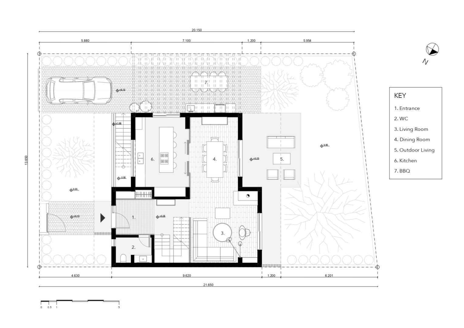
Technical Drawings
Gallery
Back to Projects