ARTCHITECT'S
TUDIO
Ανακαίνιση Διαμερίσματος στον Λυκαβηττό, Αθήνα
Έργα / Κατοικίες / Ανακαίνιση Διαμερίσματος στον Λυκαβηττό, Αθήνα
Κατοικίες

Ανακαίνιση Διαμερίσματος στον Λυκαβηττό, Αθήνα

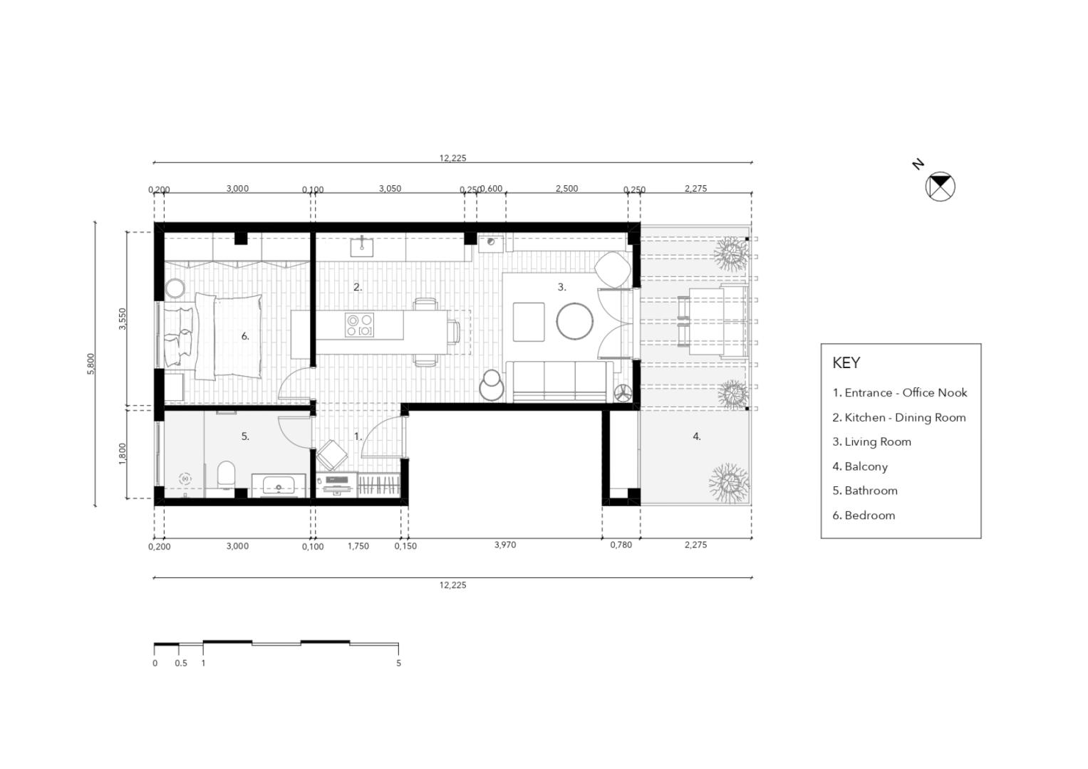
Το έργο αφορά την ανακαίνιση ενός μικρού διαμερίσματος σε τελευταίο όροφο, στην περιοχή του Λυκαβηττού. Στην προηγούμενη κατάστασή του, το διαμέρισμα είχε επεκταθεί άτυπα μέσω του κλεισίματος του πίσω εξώστη, μια συνηθισμένη πρακτική σε παλαιότερες αθηναϊκές πολυκατοικίες με στόχο την αύξηση του εσωτερικού χώρου. Παρά την επέμβαση αυτή, η κάτοψη παρέμενε περιορισμένη, λειτουργώντας ως στούντιο με μειωμένη χωρική σαφήνεια.

Η νέα πρόταση ενσωματώνει πλήρως τον πίσω εξώστη στον εσωτερικό χώρο του διαμερίσματος, αντιμετωπίζοντάς τον ως ενεργό τμήμα της κατοικίας και όχι ως βοηθητικό χώρο. Η κίνηση αυτή επέτρεψε την αναδιοργάνωση της κάτοψης και τη μετατροπή του διαμερίσματος από στούντιο σε κατοικία ενός υπνοδωματίου. Οι ιδιωτικοί και οι κοινόχρηστοι χώροι ορίζονται με σαφήνεια, διατηρώντας παράλληλα τη συνέχεια και τη ροή στον περιορισμένο διαθέσιμο χώρο.

Ο χώρος της εισόδου επανασχεδιάστηκε ως ένας συμπαγής χώρος εργασίας σε συνδυασμό με ντουλάπα εισόδου, προσφέροντας αποθήκευση και έναν διακριτό χώρο γραφείου χωρίς αύξηση του εμβαδού. Ιδιαίτερη έμφαση δόθηκε στις αναλογίες, τον φυσικό φωτισμό και τη λειτουργικότητα της καθημερινής χρήσης, με ενσωματωμένες κατασκευές που υποστηρίζουν την κατοίκηση. Η ανακαίνιση αναδεικνύει πώς στοχευμένες, μικρής κλίμακας παρεμβάσεις μπορούν να βελτιώσουν ουσιαστικά την ποιότητα του χώρου και της ζωής.

Στοιχεία Έργου