ARTCHITECT'S
TUDIO
Apartment Renovation in Lykabettus Hill, Athens
Projects / Residential / Apartment Renovation in Lykabettus Hill, Athens
Residential

Apartment Renovation in Lykabettus Hill, Athens

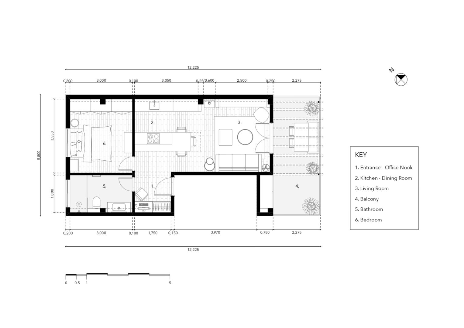
This project involves the renovation of a small top-floor apartment located in the Lykavittos area of Athens. In its previous condition, the apartment had been informally enlarged by enclosing the rear balcony, a common practice in older Athenian buildings aimed at increasing interior space. Despite this intervention, the layout remained limited, functioning as a compact studio with compromised spatial clarity.

The proposed design fully integrated the former rear balcony into the apartment’s interior, treating it as an active part of the domestic layout rather than an auxiliary space. This allowed for a reorganisation of the plan that transformed the apartment from a studio into a one-bedroom residence. Private and living areas are clearly defined while maintaining continuity across the limited footprint.

The space near the entrance was re-imagined as a compact office nook combined with an entrance closet, introducing both storage and a dedicated workspace without increasing the apartment’s size. Careful attention was given to proportion, natural light, and everyday functionality, with built-in elements supporting daily use. The renovation demonstrates how precise, small-scale interventions can significantly enhance livability and spatial quality.

Technical Drawings