ARTCHITECT'S
TUDIO
Ανακαίνιση Διαμερίσματος στα Μελίσσια Αττικής
Έργα / Κατοικίες / Ανακαίνιση Διαμερίσματος στα Μελίσσια Αττικής
Κατοικίες

Ανακαίνιση Διαμερίσματος στα Μελίσσια Αττικής

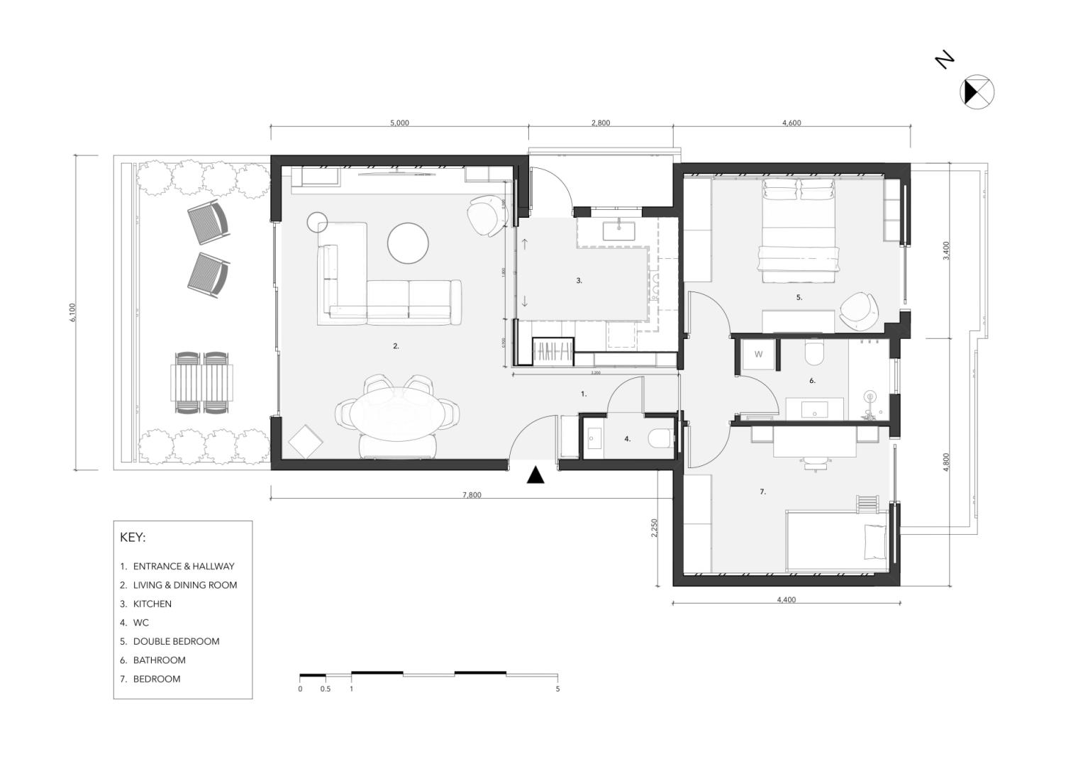
Το έργο αφορά την ανακαίνιση ενός διαμερίσματος 82 τ.μ., το οποίο βρίσκεται στον τρίτο όροφο πολυκατοικίας κατασκευής της δεκαετίας του 1990, στη Μελίσσια, στα βόρεια προάστια της Αθήνας. Η αρχική κάτοψη περιλάμβανε έναν ενιαίο χώρο καθιστικού και τραπεζαρίας με θέα προς τον μπροστινό κήπο, δύο υπνοδωμάτια στο πίσω μέρος του διαμερίσματος, καθώς και την κουζίνα και ένα WC στη μεση της κάτοψης.

Η επιθυμία της ιδιοκτήτριας ήταν η ανανέωση του διαμερίσματος με στόχο να γίνει ο χώρος πιο φωτεινός και ευρύχωρος. Βασική απαίτηση αποτέλεσε ο οπτικός διαχωρισμός της κουζίνας από τον χώρο της εισόδου, καθώς και η δημιουργία άφθονων κλειστών αποθηκευτικών χώρων σε όλο το διαμέρισμα.

Η πρόταση εισάγει έναν ενιαίο αποθηκευτικό τοίχο που οργανώνει το κεντρικό τμήμα της κατοικίας. Από την πλευρά της κουζίνας, ο τοίχος φιλοξενεί εκτεταμένα ντουλάπια και ενσωματωμένους αποθηκευτικούς χώρους και συσκευές, ενώ από την πλευρά της εισόδου ενσωματώνει ντουλάπα εισόδου, χώρο αποθήκευσης παπουτσιών, δύο στενές βιβλιοθήκες καθώς και μια μικρή εσοχή καθίσματος με καθρέφτη. Παράλληλα, το στοιχείο αυτό διαχωρίζει διακριτικά τον χώρο της εισόδου και το WC από τους κύριους χώρους διημέρευσης.

Για να αντιμετωπιστεί ο προβληματισμός σχετικά με το αν είναι προτιμότερη μία ανοιχτή ή κλειστή κουζίνα, η πρόταση περιλαμβάνει μια συρόμενη χονευτή πόρτα μεταξύ της κουζίνας και του χώρου καθιστικού–τραπεζαρίας. Η πόρτα μπορεί να κρύβεται πλήρως μέσα στον τοίχο ώστε το διαμέρισμα να λειτουργεί ως ενιαίος χώρος, ή να κλείνει όταν επιθυμείται ένας πιο σαφής διαχωρισμός μεταξύ κουζίνας και καθιστικού. Η επέμβαση ενισχύει τη χωρική σαφήνεια, τη λειτουργικότητα και την καθημερινή άνεση, διατηρώντας παράλληλα μια ήρεμη και σύγχρονη ατμόσφαιρα στο εσωτερικό.

Στοιχεία Έργου