ARTCHITECT'S
TUDIO
Κέντρο Φυσικοθεραπείας στο Παλαιό Φάληρο
Έργα / Επαγγελματικοί Χώροι / Κέντρο Φυσικοθεραπείας στο Παλαιό Φάληρο
Επαγγελματικοί Χώροι

Κέντρο Φυσικοθεραπείας στο Παλαιό Φάληρο

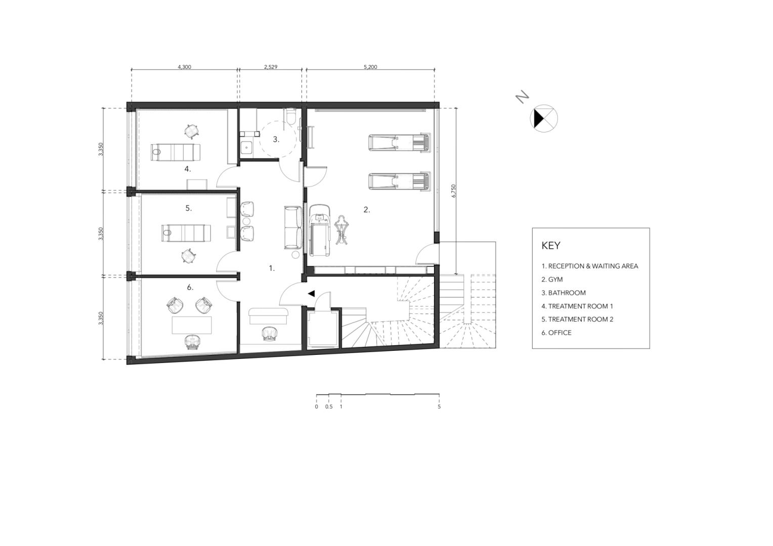
Το έργο αφορά τον σχεδιασμό ενός Στούντιο Φυσικοθεραπείας στο Παλαιό Φάληρο, στην Αθήνα. Το στούντιο περιλαμβάνει χώρο υποδοχής και αναμονής, δύο αίθουσες θεραπείας, έναν χώρο συμβουλευτικής συνεδρίας, έναν χώρο γυμναστηρίου, καθώς και χώρο υγιεινής.

Στοιχεία Έργου