ARTCHITECT'S
TUDIO
Physiotherapy Studio in Paleo Faliro
Projects / Commercial / Physiotherapy Studio in Paleo Faliro
Commercial

Physiotherapy Studio in Paleo Faliro

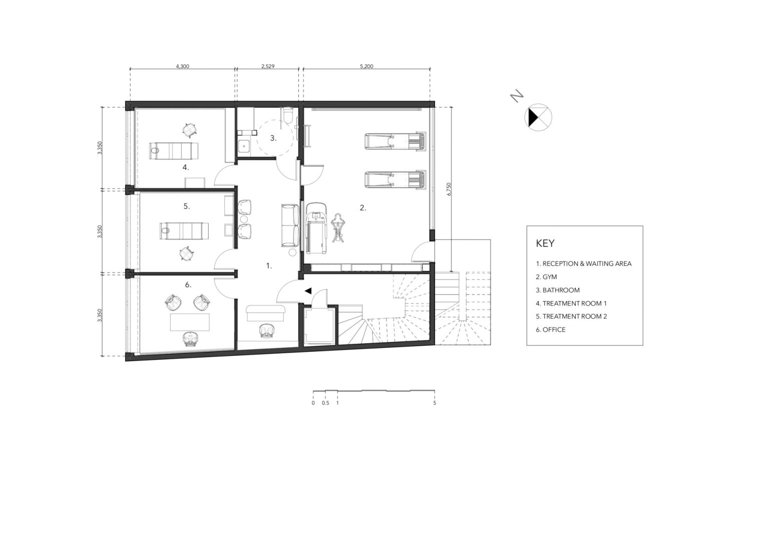
This project is the design of a Physiotherapy Studio in Paleo Faliro in Athens. The studio consists of a reception and waiting room , two therapy rooms, a consultation room and a gym along with a bathroom space.

Technical Drawings