ART
CHITECT'
S
TUDIO
Έργα
Υπηρεσίες
Σχετικά
Επικοινωνία
EN
|
ΕΛ
Ανοιχρόχρωμο
Σκουρόχρωμο
Συστήματος
Έργα
/
Κατοικίες
/
Κατοικία στη Λεμεσό Κύπρου
Κατοικίες
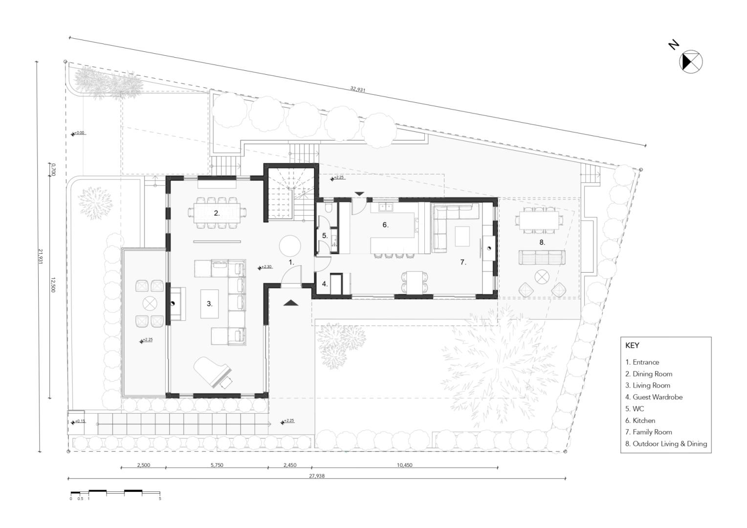
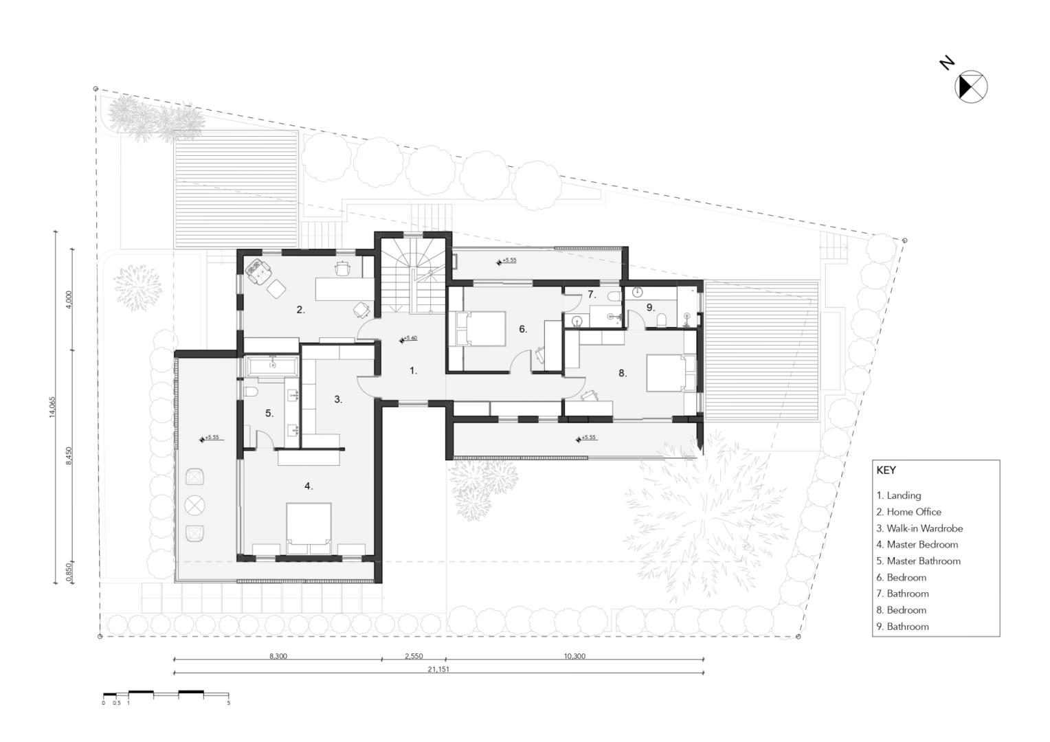
Κατοικία στη Λεμεσό Κύπρου
Πρόταση για μία νέα Κατοικία στη Λεμεσό Κύπρου
Στοιχεία Έργου
Γκαλερί
Επιστροφή στα Έργα