ART
CHITECT'
S
TUDIO
Projects
Services
About
Contact
EN
|
ΕΛ
Light
Dark
System
Projects
/
Residential
/
Residence in Limassol, Cyprus
Residential
Residence in Limassol, Cyprus
New- built Residence in Limassol, Cyprus
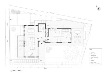
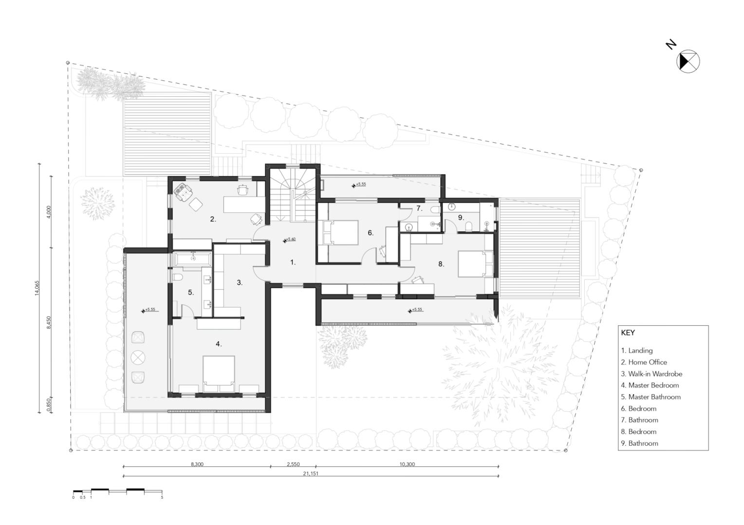
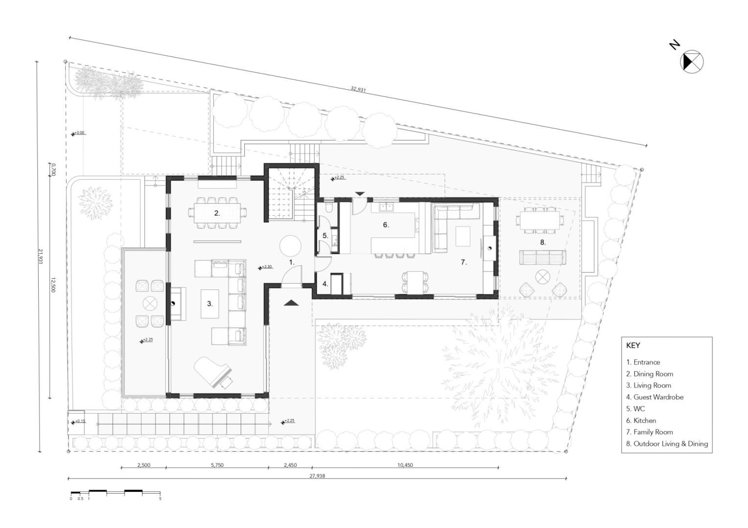
Technical Drawings
Gallery
Back to Projects