ARTCHITECT'S
TUDIO
Μετατροπή Παλιάς Πέτρινης Αποθήκης για Σκάφος σε Εξοχική Κατοικία
Έργα / Κατοικίες / Μετατροπή Παλιάς Πέτρινης Αποθήκης για Σκάφος σε Εξοχική Κατοικία
Κατοικίες

Μετατροπή Παλιάς Πέτρινης Αποθήκης για Σκάφος σε Εξοχική Κατοικία

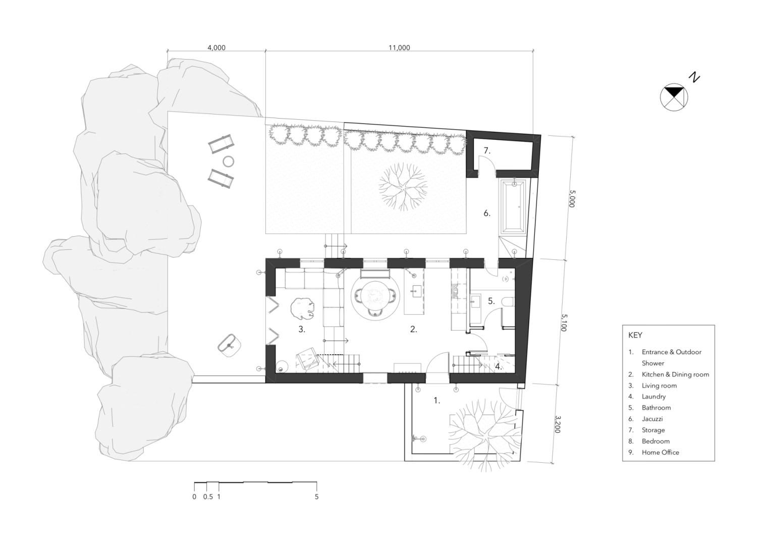
Το έργο αφορά την αποκατάσταση και επανάχρηση μίας παλαιάς, εγκαταλελειμμένης πέτρινης αποθήκης για σκάφος, η οποία βρίσκεται σε άμεση επαφή με τη θάλασσα. Αρχικά σχεδιασμένο ως καθαρά λειτουργική κατασκευή, το κτίσμα επαναπροσδιορίστηκε ως μια συμπαγής εξοχική κατοικία, διατηρώντας το ιστορικό του κέλυφος και ενσωματώνοντας σύγχρονες ανάγκες διαβίωσης μέσα σε περιορισμένο αποτύπωμα.

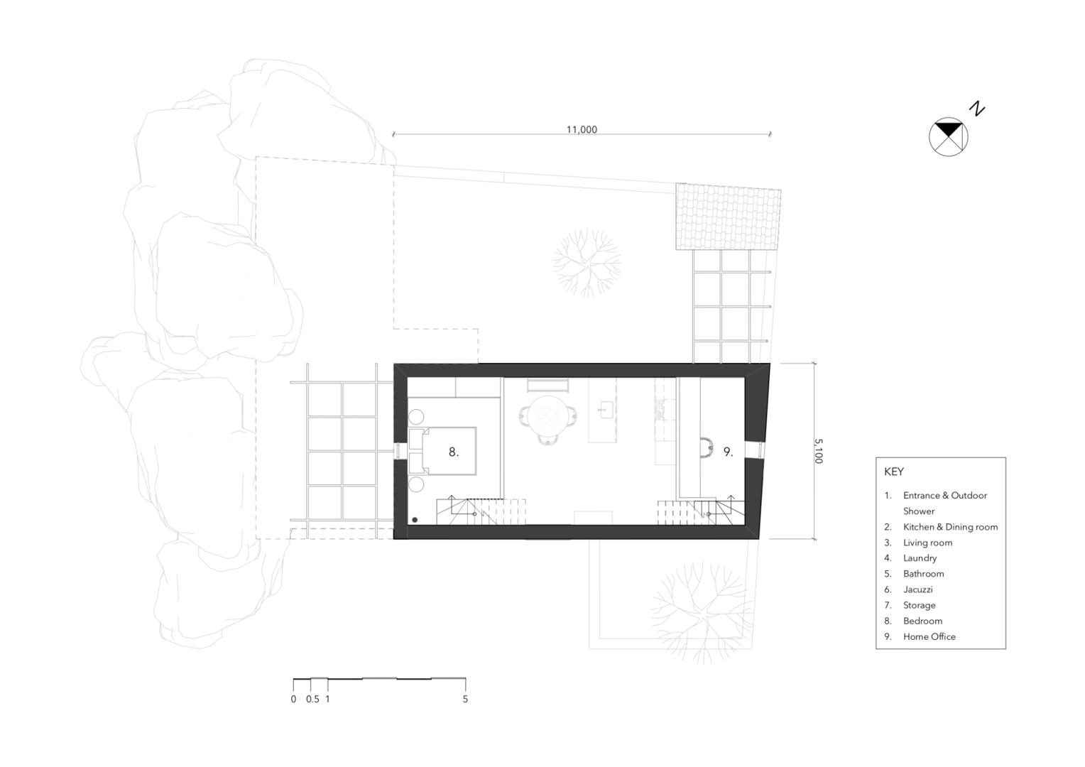
Λόγω της μικρής επιφάνειας του ισογείου, η σχεδιαστική στρατηγική βασίστηκε στην αξιοποίηση του καθ’ ύψος χώρου. Δημιουργήθηκαν δύο πατάρια, τα οποία μεγιστοποιούν τη λειτουργικότητα χωρίς να επιβαρύνουν τη χωρική σαφήνεια. Το κύριο πατάρι, πάνω από τον χώρο καθιστικού, φιλοξενεί το υπνοδωμάτιο, διατηρώντας οπτική σχέση με τον διπλού ύψους χώρο. Ένα δεύτερο πατάρι, πάνω από τον χώρο του λουτρού, λειτουργεί ευέλικτα είτε ως χώρος εργασίας είτε ως ξενώνας.

Ο εσωτερικός σχεδιασμός διατηρήθηκε λιτός, με περιορισμένη χρωματική και υλική παλέτα, ώστε να μην αποσπάται η προσοχή από τη μοναδική θέα προς τη θάλασσα. Φυσικές υφές και ουδέτεροι τόνοι αναδεικνύουν το φως και την ατμόσφαιρα, μετατρέποντας το κτίσμα σε ένα ήσυχο, σύγχρονο καταφύγιο που ισορροπεί ανάμεσα στη διατήρηση και τη σύγχρονη κατοίκηση.

Στοιχεία Έργου