ARTCHITECT'S
TUDIO
Storage Unit Conversion into Apartment in Vyronas, Athens
Projects / Residential / Storage Unit Conversion into Apartment in Vyronas, Athens
Residential

Storage Unit Conversion into Apartment in Vyronas, Athens

This project concerns the conversion of a former semi-basement storage space into a spacious open-plan apartment with direct access to the rear garden. The existing space was originally used for light industrial storage, with limited natural light and a utilitarian character. Rather than erasing this past, the design approach sought to reinterpret it through a contemporary residential lens.

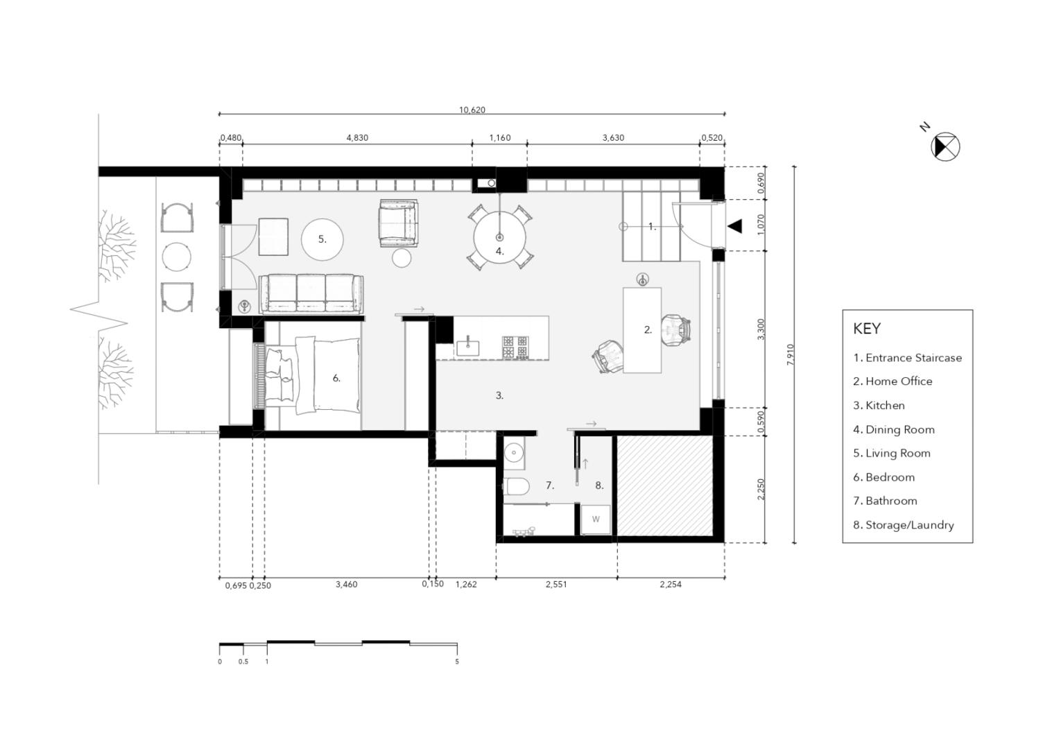
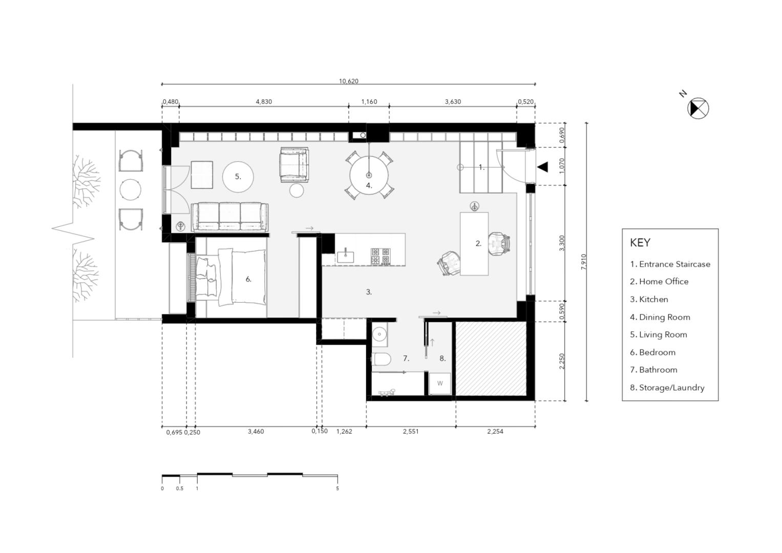
The new layout organises the apartment as a fluid sequence of spaces, accommodating living, dining, kitchen, home office, and sleeping areas within an open and flexible plan. Visual and physical connections to the backyard were enhanced, allowing light and outdoor space to become integral parts of everyday living. The difference in level between the apartment and the street outside was carefully utilised to introduce concealed storage along the entrance zone, maximising functionality without compromising spatial clarity.

The material palette draws directly from the building’s previous use. The existing mosaic flooring was retained and polished, becoming a unifying surface throughout the apartment. Large concrete beams and structural elements were left exposed, preserving the spatial depth and industrial character of the space. Custom-designed furniture incorporates light metal frames that contrast with the weight of the concrete structure, reinforcing the dialogue between old and new. The project transforms an underused space into a robust yet comfortable living environment, where material memory and contemporary habitation coexist.

Technical Drawings